

zur Bildergalerie












| 14482 Potsdam (Babelsberg) Stadthaus mit Garten in Babelsberg | ||
|---|---|---|
| Anfahrtskarte | ||
| Mietangebot: | Stadthaus |
![]() |
| Objekt-ID: | VM-AD-AB-28-HAUS | |
| Nutzungsart: | Wohnen | |
| Baujahr: | 2020 | |
| Grundstück: | ca. 150 m² | |
| Wohn-/ Nutzfläche: | ca. 130 m² | |
| Zimmer: | 4 | |
| Zustand: | Neubau | |
| Ausstattung: | hochwertig | |
| Verfügbar ab: | # vermietet | |
| Dieses Mietobjekt steht leider nicht mehr zur Verfügung. Wenn Sie eine ähnliche Immobilie suchen, schauen Sie in unseren Angeboten. | ||
| Etagenanzahl: | 2 | |
| Fußboden: | Echtholzparkett, Fliesen | |
| Fußbodenheizung: |
![]() | |
| Heizungsart: | Zentralheizung | |
| Befeuerungsart: | Gas | |
| Küche: | offene Küche | |
| Haupt-Bad: | OG: Vollbad | |
| Gäste-WC: | EG | |
| Abstellraum: |
![]() | |
| Nichtraucher: |
![]() | |
| Terrasse: |
![]() | |
| Gartennutzung: |
![]() | |
| Gartenhaus: | Fahrräder, Gartengeräte | |
| Stellplatz: | 1 | |
| Stellplatzmiete: | 50,00 € | |
| Mietkaution: | 3 Nettokaltmieten | |
| Energieausweis: | Ansehen | auf Anfrage |
| weniger Details | ||
| weniger Details | ||
| Energieausweis für Wohngebäude | ![]() |
|---|---|
| Der Energieausweis (zum Nachweis des Energieverbrauchs) ist in Auftrag gegeben und kann erst zum späteren Zeitpunkt vorgelegt werden. | |
| ausblenden | |
Formular ausblenden











Bildergalerie ausblenden


Karte ausblenden
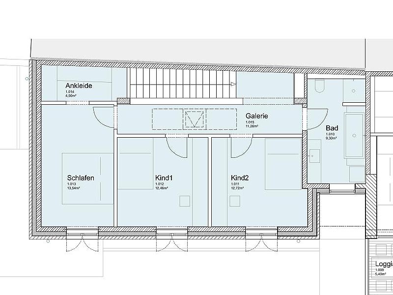
Bei diesem Neubau-Projekt handelt es sich um ein Stadthaus, dass in anspruchsvoller moderner Architektur inmitten einer familienfreundlichen, gewachsenen und niveauvollen Nachbarschaft errichtet wird. Das geräumige Entrée mit Garderobe, ein ca. 54 m² großer lichterfüllter Wohn-/ Essbereich mit offen gestalteter Küche und Gartenzugang, drei Schlafzimmer mit einer Ankleide im Obergeschoss, das Haupt-Bad, ein Gäste-WC sowie ein unverzichtbarer Abstellraum bilden das vielseitige Raumangebot, das auch einer großen Familie reichlich Platz bietet. Besonders hervorzuheben sind das stimmige ästhetische Design und die hochwertige Ausstattung mit Eichenparkett, Fußbodenheizung und puristisch-eleganter Badgestaltung mit Marken-Sanitärobjekten. Zum Stadthaus gehört ein Gartenhaus für Fahrräder und Gartengeräte sowie ein Stellplatz auf dem Grundstück.
Das Neubau-Projekt wird voraussichtlich Ende 2020 fertiggestellt.
Bei diesem Neubau-Projekt handelt es sich um ein Stadthaus, dass in anspruchsvoller moderner Architektur inmitten einer familienfreundlichen, gewachsenen und niveauvollen Nachbarschaft errichtet wird.
mehr anzeigen
Das geräumige Entrée mit Garderobe, ein ca. 54 m² großer lichterfüllter Wohn-/ Essbereich mit offen gestalteter Küche und Gartenzugang, drei Schlafzimmer mit einer Ankleide im Obergeschoss, das Haupt-Bad, ein Gäste-WC sowie ein unverzichtbarer Abstellraum bilden das vielseitige Raumangebot, das auch einer großen Familie reichlich Platz bietet. Besonders hervorzuheben sind das stimmige ästhetische Design und die hochwertige Ausstattung mit Eichenparkett, Fußbodenheizung und puristisch-eleganter Badgestaltung mit Marken-Sanitärobjekten. Zum Stadthaus gehört ein Gartenhaus für Fahrräder und Gartengeräte sowie ein Stellplatz auf dem Grundstück.
Das Neubau-Projekt wird voraussichtlich Ende 2020 fertiggestellt.
weniger anzeigen
Massivhaus, 4 Zimmer, Wohnräume mit Eichenparkett und Fußbodenheizung, Wohnzimmer mit offener Küche, Bäder hell gefliest, Haupt-Bad mit Wanne und Dusche, Gäste-WC, Holzfenster, Abstellraum, TV-Kabelanschluss, Telefonanschluss, Gaszentralheizung, Gartennutzung, Terrasse, Gartenhaus für Fahrrad- und Gartengeräte, Stellplatz am Haus
Das Mietobjekt befindet sich in Babelsberg Nord nahe dem Babelsberger Park und liegt in einer ruhigen Anliegerstraße. Potsdam/Babelsberg und seine reizvolle Umgebung, reich an Wald- und Seenlandschaften, inmitten einer historisch bedeutsamen Vergangenheit, laden ein zum Betrachten und Verweilen, zum Kennenlernen und Spazierengehen, zum Entdecken und Wiederkommen. Einkaufsmöglichkeiten für Waren des täglichen Bedarfs, Schulen und Kindertagesstätten finden Sie im Zentrum von Babelsberg oder im Nachbarort Berlin/Wannsee. Straßenbahn, Bus und S-Bahn sind fußläufig erreichbar. Dies ermöglicht eine schnelle Anbindung nach Potsdam/Stadt und Berlin. Die umliegenden Seen und Wälder bieten hervorragende Naherholungsmöglichkeiten. Sie können über ein exzellentes Freizeitangebot verfügen. Rad- und Wanderwege sowie Reiterhöfe befinden sich ganz in der Nähe. Es wird Ihnen rundum eine hohe Lebensqualität geboten.
Die Angaben zum Objekt erfolgen auf Basis der Information der Vermieter. Eine Gewähr für die Vollständigkeit und Richtigkeit der Angaben kann nicht übernommen werden. Bitte beachten Sie, dass die Angaben von derzeitigen Kosten, wie z. Bsp. Betriebskosten (Nebenkosten) lediglich eine Momentaufnahme darstellen und sich diese Angaben in der Zukunft ändern können.
Ihr Ansprechpartner: Axel Schoba
Ihr Ansprechpartner: Axel Schoba